一套完整的幼兒園智能化弱電係統主要有綜合布線、視頻監控、計算機網絡、人員通道、門禁管理、入侵報警、電子圍欄、背景音樂、電子巡更、遠程看護、機房工程等係統。
1、綜合布線係統
綜合布線係統是智能化弱電係統的基礎,主要分為工作區、水平、管理間、垂直幹線、設備間、建築群6大子係統。此次幼兒園綜合布線需要在教室、教師辦公室、餐廳、教師的區域宿舍安裝網絡麵板。
2、視頻監控係統
視頻監控係統主要部署在幼兒園門口、食堂、走廊過道、樓梯口、活動室、寢室門口等區域部署高清視頻監控攝像頭。每個高清監控點的視頻圖像通過網絡傳輸到監控中心。家長通過手機APP能看到小朋友在幼兒園實時情況。
3、人員通道
幼兒園大門口是安全防範的重點區域,在幼兒園大門口部署一套人臉通道閘機,幼兒在進入閘機直接刷臉認證,授權認證成功後,可自由進出校園,保安無需二次確認,可以明顯提升校園安保效率,在未取得認證的陌生人員無法進出校園,保證校園幼師和幼童的安全。
4、門禁管理係統
門禁管理係統,主要是由門禁控製器,讀卡器,鎖,開門按鈕,管理軟件組成,主要是對通道進行安全、有效的人員出入控製,每次開門都有記錄可查詢,可明分為合法開門、非法開門和試圖開門等詳細情況,以備管理人員隨時查詢。
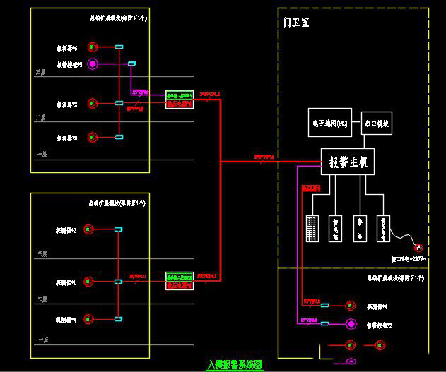
5、入侵報警係統
防範從幼兒園區周邊圍牆或柵欄非法出入者而設置的技術防範係統,是安全防範係統的第一道防線。
6、電子圍欄
電子圍欄也是傳統安防周界係統的一種,可以跟視頻監控係統做聯動,當有異常情況發生時,監控攝像頭可以抓拍畫麵,並在大屏上顯示。
7、背景音樂係統
提供幼兒園師生廣播、出操、呼叫、通知功能,還可以根據教學環境需要進行擴容。
8、電子巡查係統
可強製性的實現讓巡檢人員按時、認真的完成工作,為幼兒園的巡邏安全提供可靠的技術防範措施。
9、監控指揮中心
幼兒園監控室,部署一套2X3電視牆拚接大屏,可以顯示幼兒園內所有監控點位,一旦有緊急情況,監控室人員立即響應,趕赴事故現場進行處置。
10、機房工程
機房工程設計內容包括機房裝修、配電、防雷接地、空調、環境監控等。信息中心機房分為主機房區、監控室、辦公區、配線區、空調區等,設計配置UPS、精密空調、空調漏水檢測、溫濕度檢測、消防報警監控等。
總結
幼兒園安裝部署智能化弱電係統之後,幼兒園自身也可以將一些監控點公開到一些宣傳媒體中,提升幼兒園的知名度,同時家長有了手機APP客戶端之後不必親臨幼兒園就可以看到學校和寶寶的實時情況,增加了家長了解學校的途徑,也消除了家長心目中的擔憂,一舉多得,未來隨著智能安防的不斷發展,幼兒園將會應用更多安防高科技,來守護幼兒的安全!


